La ciudad de Sydney, al igual que el resto de ciudades australianas, ha crecido durante el último siglo en base al modelo de desarrollo urbano de la ciudad jardín, a pesar de que ya han pasado varias décadas desde que arquitectos y urbanistas somos plenamente conscientes de los perjuicios que conlleva dicho modelo. Seguramente la llegada de la ciudad jardín a Australia no tenga tanto que ver con su creador, el urbanista británico Ebenezer Howard —con quien podríamos fácilmente establecer conexiones en base a los lazos coloniales que unen al Reino Unido con Australia— y sí mucho más con Walter Burley Griffin –quien había trabajado para Frank Lloyd Wright durante su etapa de las Casas de la Pradera– al ganar el concurso para la nueva capital Canberra. Hasta entonces, tanto la arquitectura como el urbanismo australianos seguían los referentes de la ciudad densa europea y más concretamente del modelo victoriano inglés. El resultado ha sido una ciudad con un centro hiper-densificado e incluso sobresaturado, rodeado por una periferia de baja densidad que se extiende unos 30 km al Norte, otros 30 km al Sur y unos 70 km al Oeste. Esto ha dado lugar a una densidad de población excesivamente baja, unos 400 habitantes por kilómetro cuadrado, que conlleva problemas de gasto de energía, de tiempo en desplazamientos, de calidad de las infraestructuras de transporte –que en algunas áreas están saturadas o son insuficientes-, de carencia de espacio generador de actividad urbana, de dependencia del coche y de, quizás el peor fruto, la consolidación de varias generaciones de ciudadanos que no son suficientemente conscientes de los males que provoca este tipo de urbanismo y que están únicamente movidos por el sueño ideal de la casa con jardín. Ahondando en el problema, la división del territorio en varias decenas de ayuntamientos, con oficinas de planeamiento urbanístico independientes, impide una visión y actuación global sobre la ciudad.
El único cambio reseñable de modelo empieza a ser claramente visible a partir de los sesenta, aunque existen algunos ejemplos previos. Las viviendas unifamiliares aisladas dan paso –a veces en barrios completos, otras solo en edificaciones puntuales– a pequeños edificios residenciales aislados de tres a cinco plantas. Parece como si las viviendas unifamiliares hubieran sufrido un proceso de escalado, la estructura urbana se mantiene, pero la densidad aumenta. El tejido sigue siendo puramente residencial, huérfano de actividades que pudieran generar vida urbana, por lo que los problemas anteriormente mencionados no solo no se resuelven, sino que aumentan, especialmente los relacionados con la congestión de los flujos de movimiento. Paralelamente, el “verde” se ha convertido en el tema principal para unos técnicos municipales que miden la sostenibilidad y la calidad urbana únicamente en función de la cantidad de vegetación que rodea a cada edificio.
El proyecto se localiza en Manly, una zona de gran relevancia turística, especialmente en verano, situada a media hora en ferry del centro de Sydney. El contexto es un área de densidad media –que sigue el patrón de la estructura urbana residencial anteriormente citada– fruto de diversas actuaciones a lo largo de más de un siglo, que han dado como resultado una heterogénea mezcla de estilos arquitectónicos, en algunos casos demasiado esclavos de las modas del momento. A pesar de ello, la estructura urbana es homogénea, una retícula de parcelas alargadas con uno de sus lados cortos mirando a la calle. Manly originalmente tuvo una estructura urbana de manzana cerrada e inspiración victoriana que solo ha perdurado en la Vía del Corso. Es la calle más relevante, por ser una de las zonas socialmente más activas, junto con los paseos a lo largo de las playas. La condición de enclave histórico hace que el tejido cercano a la parcela no sea residencial en su totalidad, de hecho, el uso actual del solar es un hotel.
En cuanto a la fachada, nos encontramos con unos técnicos municipales excesivamente preocupados por establecer relaciones formales contextuales. Como ya hemos dicho, no había razones que justificaran un criterio estilístico común propio en la zona, si acaso, los principios de proporción, simetría, ritmo, repetición y materialidad de todos aquellos edificios construidos antes de los años 50, pero perdidos posteriormente. Tratamos de incorporar estos principios sin sucumbir ante la copia. Por otro lado, los técnicos municipales también requerían la introducción de excesivas articulaciones y quiebros en fachada que hacían peligrar la condición de frontalidad –y no de esquina– que creemos debía tener el edificio. Llegamos a la solución a través de un juego de simetría-asimetría y de una serie de balcones que, sin alterar la condición frontal de la fachada, le aportan movimiento y profundidad.
El acceso se produce a través de un amplio lobby que conecta con un atrio a doble altura: espacio de relación, descanso, comidas y contemplación. El atrio no formaba parte de los primeros bocetos, surgió posteriormente como requerimiento del cliente. Decidimos en ese momento que debía tener una importancia clave en el proyecto, siendo el protagonista, de tal manera que el resto del edificio girara en torno a él.
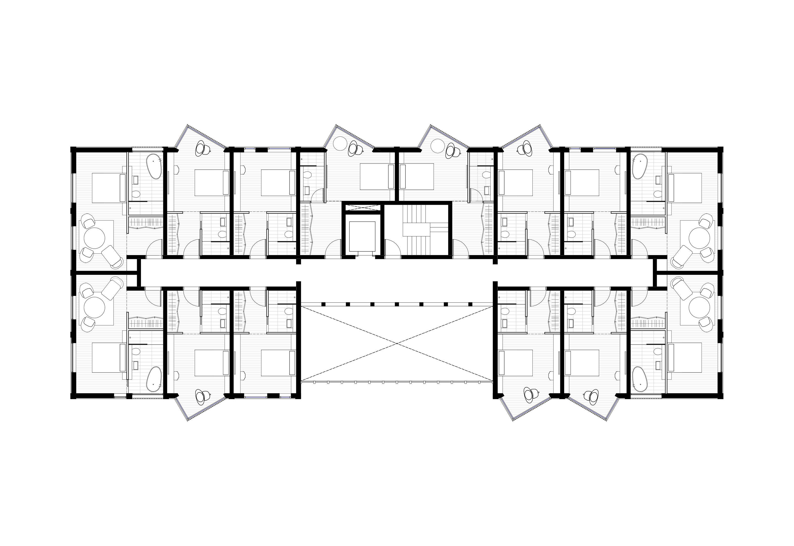
En cuanto a la planta tipo, trabajamos con una variación tipológica, fruto de la necesidad de nuestro cliente de que las habitaciones estuvieran interconectadas entre sí, pudiendo también funcionar como apartamentos de uno, dos o tres dormitorios. Para evitar la habitual puerta que conecta habitaciones abriendo directamente al espacio donde se sitúa la cama, desarrollamos una tipología que permite conectar dos o tres suites mediante un pasillo. Se posibilita así que todas las habitaciones funcionen individualmente o en grupos de hasta tres dormitorios.