Ruben Hernandez Architects
项目
公司简介
联系方式
es
en
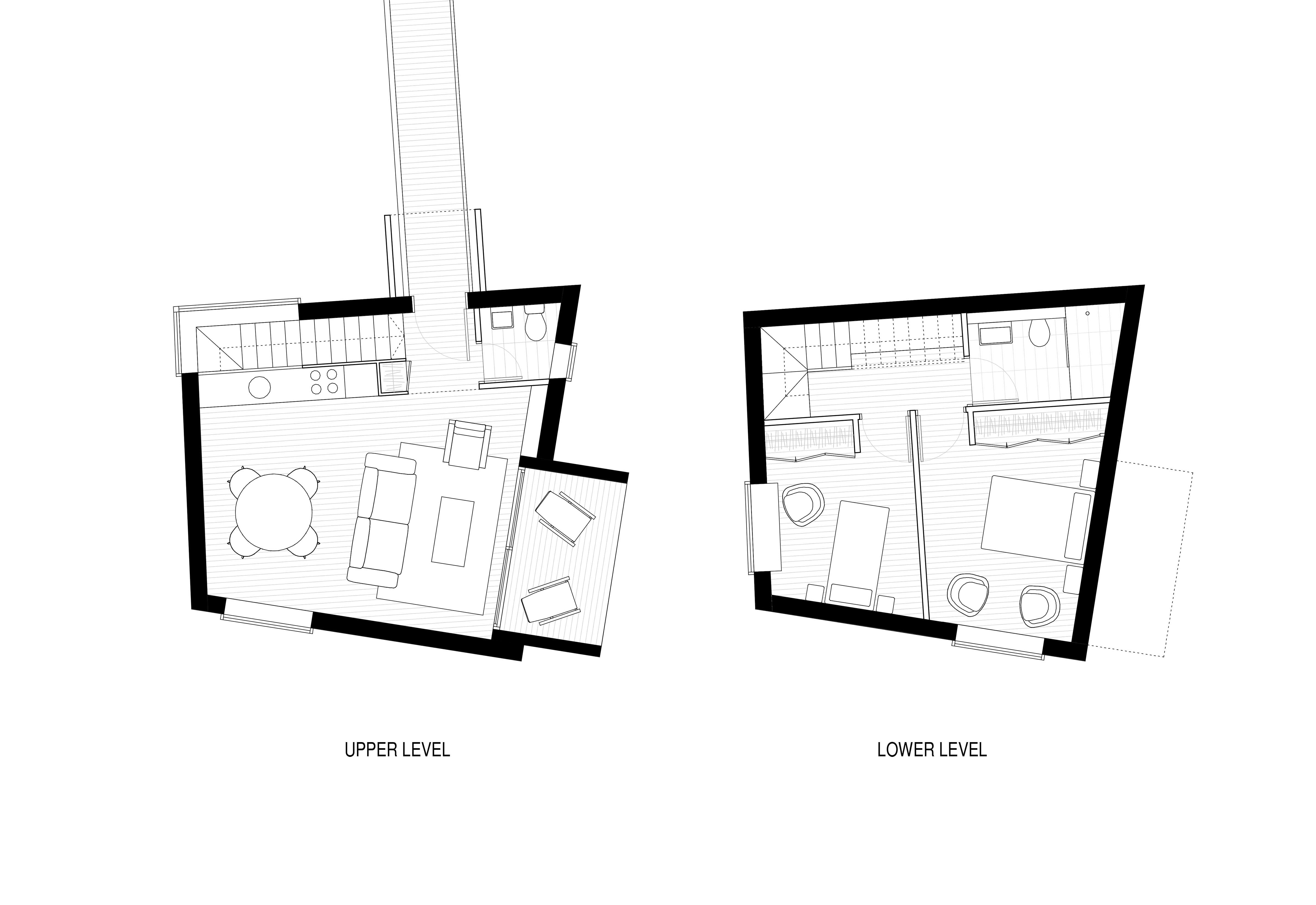
屋 E
位置:
西班牙
年份:
2020
项目所处阶段:
基础设计完成
用途:
住房 (82m²)